新闻资讯
打破传统中式风格中的沉稳厚重色彩,让居室在视觉上显得更加的轻松自然;家具形态上,改善传统中式的繁琐设计,呈现出一种简洁清秀的观感。而这,就是新中式风格的特点
设计风格:新中式
设计单位:嘉兴清艺装饰工程有限公司
主创设计:孙燕清
设计说明:本案采用素色设计,体现出新中式风格的自然特质,大空间的简洁式设计,配以中式元素,给人带来一种非常完美的视觉享受。
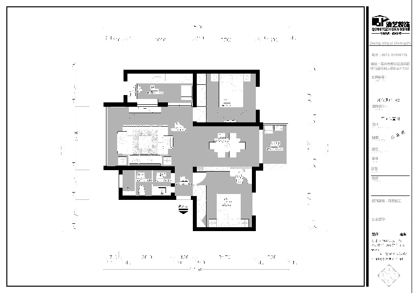
设计平面图:

客厅:客厅整体墙面用白色乳胶漆、地面用木地板和地毯相搭配,采用连贯的色调成就空间的整体感,整体实木的边框与客厅内各处的实木元素有巧妙呼应,凸显品位和韵律。乳白色墙面装饰着幅整体垂直艺术画搭配白色布艺沙发与吊灯灯光的颜色相呼应,营造出客厅的舒适感;家具摆放讲究对称性使用实木材质配方形茶几、中式椅子、盆景加以点缀营造出雅致的待客空间。

主卧:主卧室空间也融入了各种中式元素,圆滑的台灯、景观图案枕头和窗台等色调深而浅,一股厚厚的中式风在卧室徘徊。软包设计的床头墙,灰色和白色床品也为这个休息空间增添了更多的浪漫和舒适,特别是飘窗的设计,深咖啡色和白色搭配双层窗帘、与中式枕头等,都增加了主卧室空间的美感。

次卧:次卧设计相对更加生动,乳白色和少量的深蓝色相互协调,不仅提亮了空间,还避免了沉重的感觉,更加时尚。卧室床的背景搭配山水画与枝形吊灯的金属质感相协调,具有高贵的感觉。枕头和枕头整齐地摆放在床上不同的颜色形成一定的跳跃感,略显活泼。

嘉兴清艺装饰工程有限公司-嘉兴装修公司-嘉兴装饰公司_嘉兴别墅装修 备案号:浙ICP备18057488号-1